HOME SOLUTIONS PROJECTS offers the complete service package to get your construction project approved.

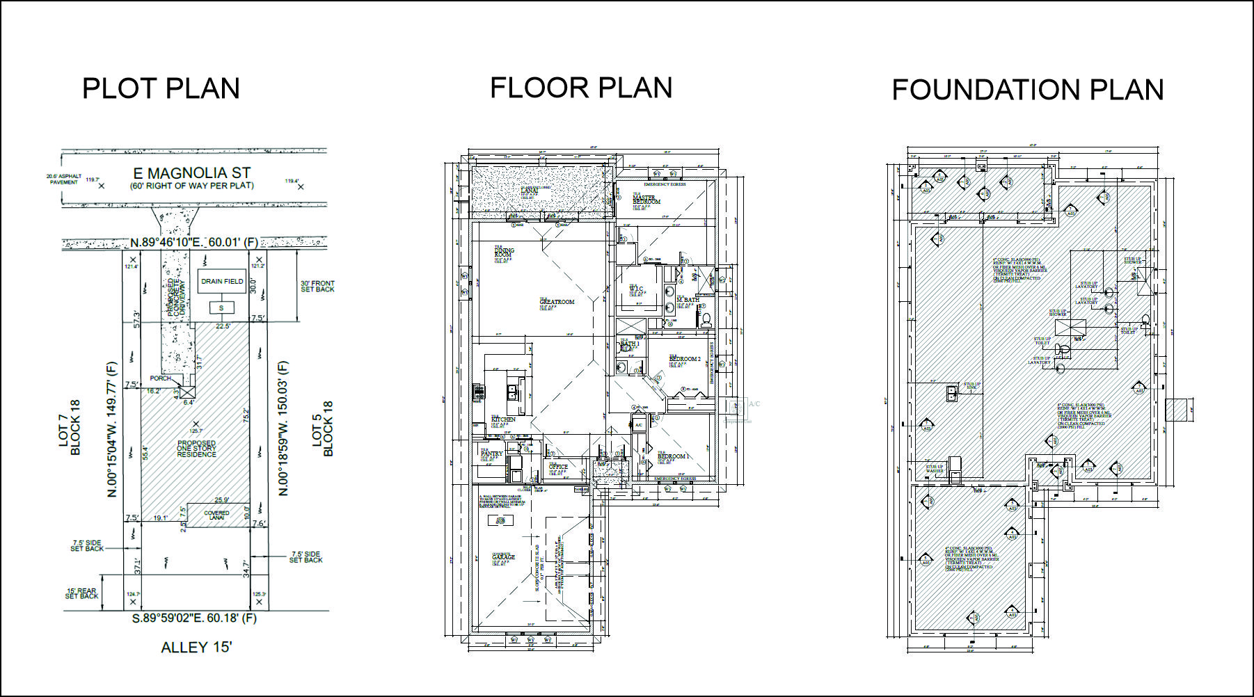
Blueprints

Blueprints drawn according to the Florida Building Code.

Additional documentation required

  • Energy Calculation
  • Truss Engineering
  • Boundary Survey

Online

Online processing of Building Permits in Florida

A Certified Building

A Certified Building Contractor to execute the project.

Whatever your need may be, from your new home, commercial local or modifying the existing one, we have your design and drawing solutions

+1 (407) 490-1150

info@homesolutionsprojects.com